• Avgorou, Famagusta
  • #6571

Residential Land in Avgorou

  • Land, Building Plot
  • 546 m²
Asking Price
€53,000+VAT

Overview

  • Road Access: Public road
  • Subcategory: Residential

Description

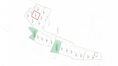
This residential land is ideally located in Avgorou, just a short distance from the central core of the community and only 640m from the Avgorou–Liopetri connecting road.

The plot has a total area of 546 sqm and benefits from a road frontage of 17m. It is fully serviced with water supply and electricity, making it ready for development.

The property is affected by compulsory road widening and pavement works, which will slightly reduce the total land area. However, these improvements will enhance accessibility and the overall appeal of the location.

Its position offers excellent access to a wide range of amenities, including schools, restaurants, the town hall, post office, pharmacy, park, and more.

Additionally, the property is eligible for Government Subsidy, making it an attractive investment opportunity.

Features

  • Connected to electric mains
  • Easy access to highway
  • Easy access to main roads
  • Municipal water/sewage
  • Near amenities
  • Village view

Planning characteristics

Planning Zone Build Factor Cover Factor Max Height Max Floors
Κα6 100% 50% 8.3 m 2

Downloads

  • 500 m Amenities
  • 40 km Airport
  • 9 km Sea
  • 600 m Public transport
  • 900 m Schools
  • 10 km Resort

Similar Properties

Paralimni, Famagusta
#5926

Shared Building Plot in Paralimni

€59,000+VAT€70,000
  • 282 m²
Frenaros, Famagusta
#5511

Commercial plot in Frenaros

€55,000+VAT€65,000
  • 492 m²
EXCLUSIVE
Avgorou, Famagusta
#2413

Residential Building Plot in Avgorou

€59,000+VAT
  • 551 m²